
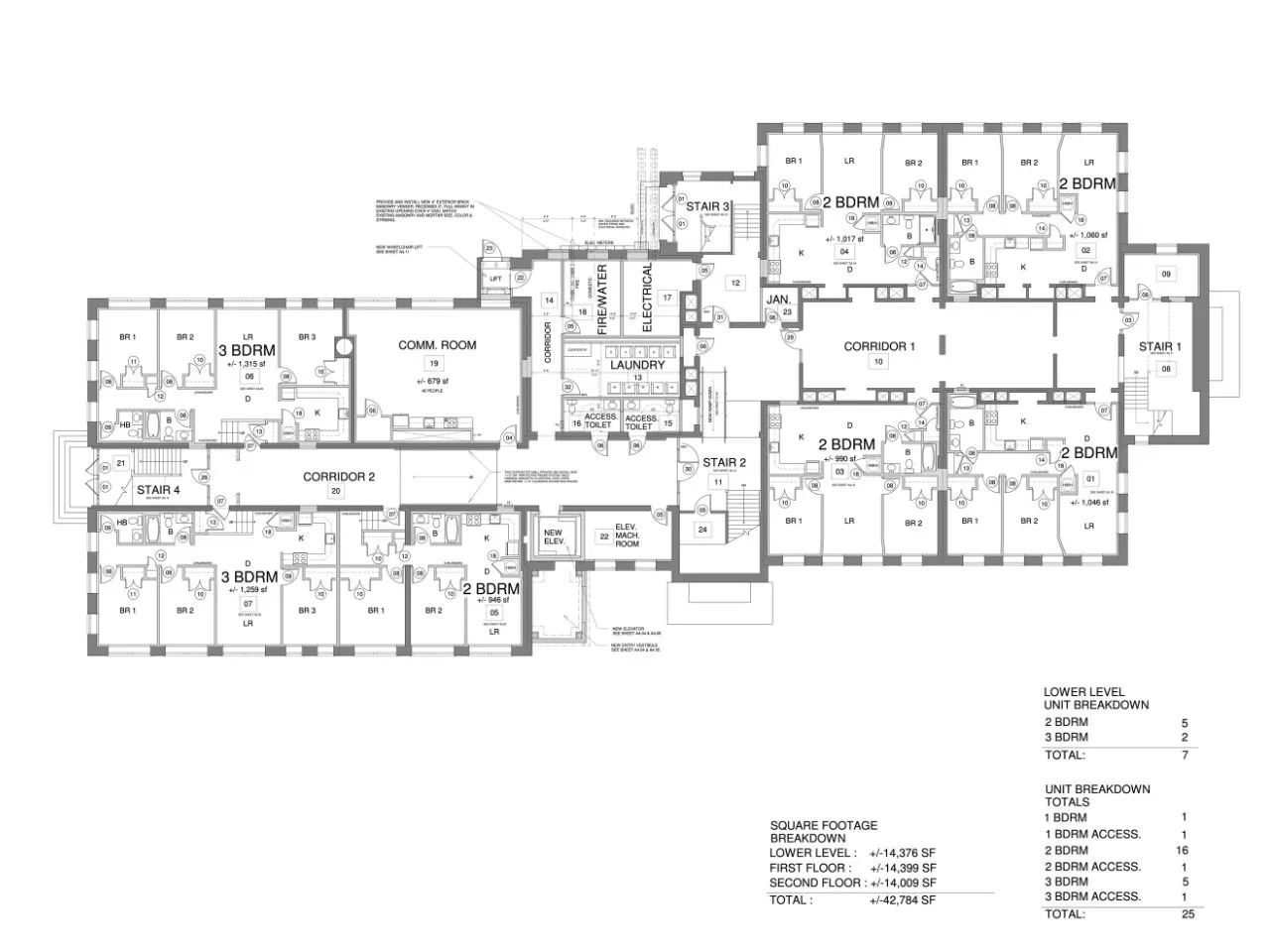
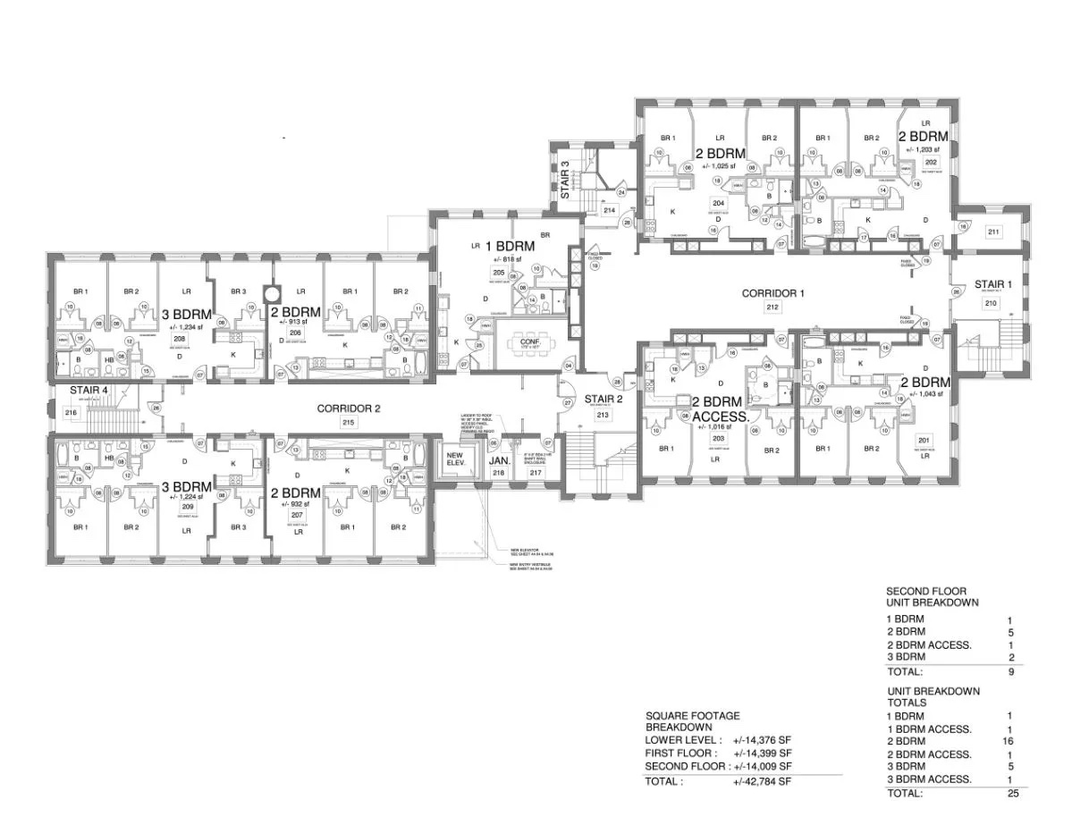
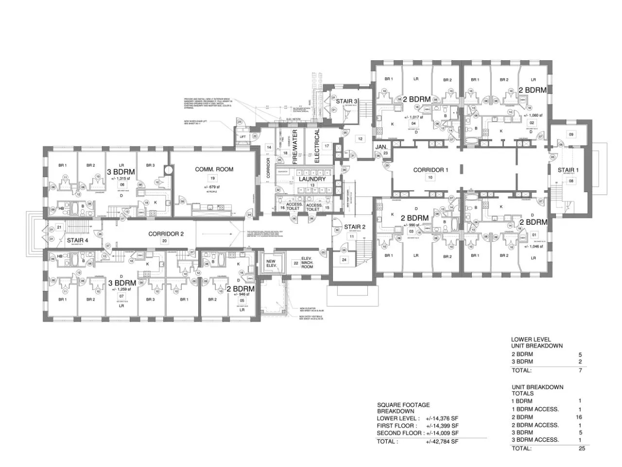
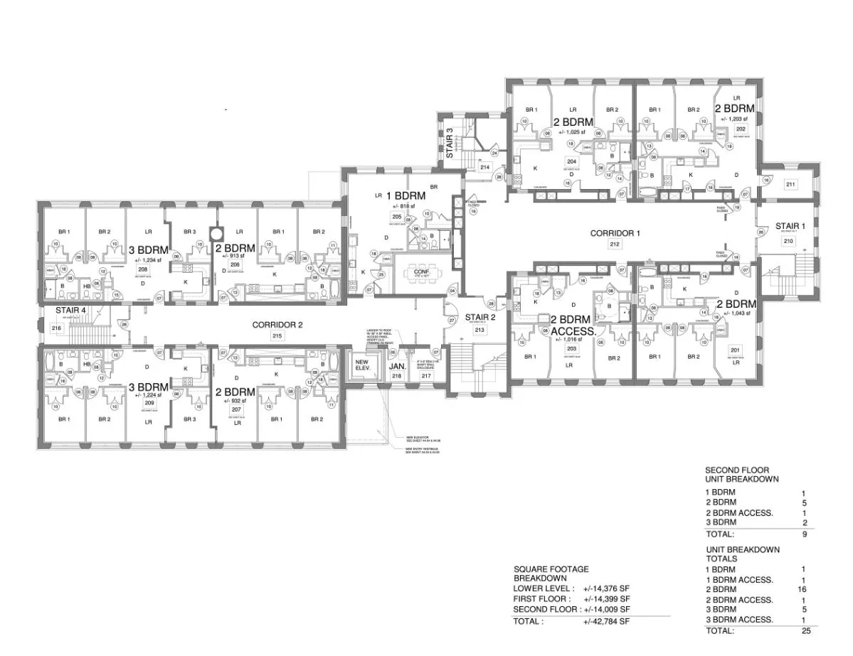
Belcher Apartments
10 Southwick Street Chicopee,Massachusetts 01020

VOC and our correspondences are funded with a variety of sources that includes Federal Funds from various departments of the US Health and Human Services, including the Office of Community Services, which are not responsible for or endorse any of the content here.